P001 

Build Home
Contact Us

Square Footage
3,420 gross square feet

Lot Size
Varies by location

Construction Cost
Varies by location

Design Cost
In general, our Predesigned homes:
~ Save cost off our typical full-service design fee.
~ Save 4-6 months + off our typical design schedule, resulting in additional savings and faster time to obtaining your building permit.
~ Allow you to start with an idea and make it your own.

Bedrooms
3 bedrooms

Bathrooms
3 bathrooms
Outdoor shower

Additional
Pool (optional)
Basement (optional)
Indoor Theater (optional with basement)
Office / Gym (optional with basement)
Outdoor Kitchen

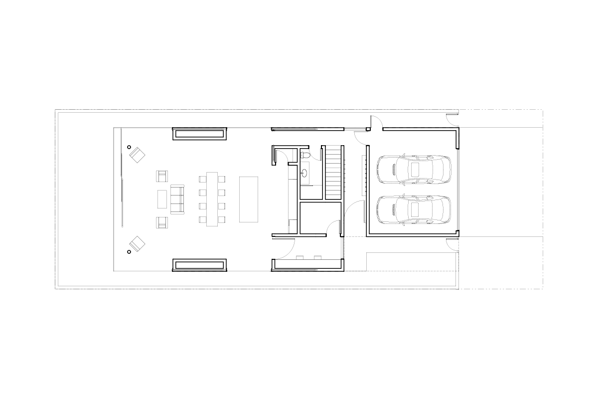
First Floor

Second Floor

First Floor

Second Floor

Build this Home
Next
Next

P002